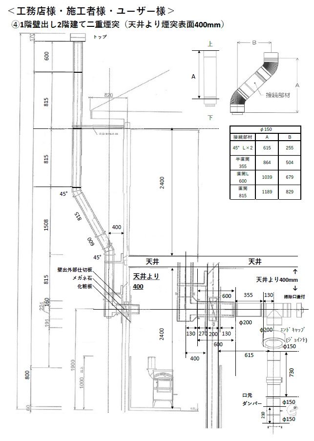
薪ストーブ 1階壁出し2階建て二重煙突
薪ストーブになくてはならない重要な煙突、
薪ストーブの選定とともに、煙突も忘れずに楽しくご検討を!
・薪ストーブ専門店がおすすめする安心の二重煙突です。
・1階壁出し2階建て二重煙突(税込:420,200円)
煙突相談をお待ちしております。

薪ストーブになくてはならない重要な煙突、
薪ストーブの選定とともに、煙突も忘れずに楽しくご検討を!
・薪ストーブ専門店がおすすめする安心の二重煙突です。
・1階壁出し2階建て二重煙突(税込:420,200円)
煙突相談をお待ちしております。
