薪ストーブ煙突は、やっぱり専門店で!
薪ストーブは煙突が命、重要です。
軽井沢暖炉 煙突施工の4タイプを紹介します。
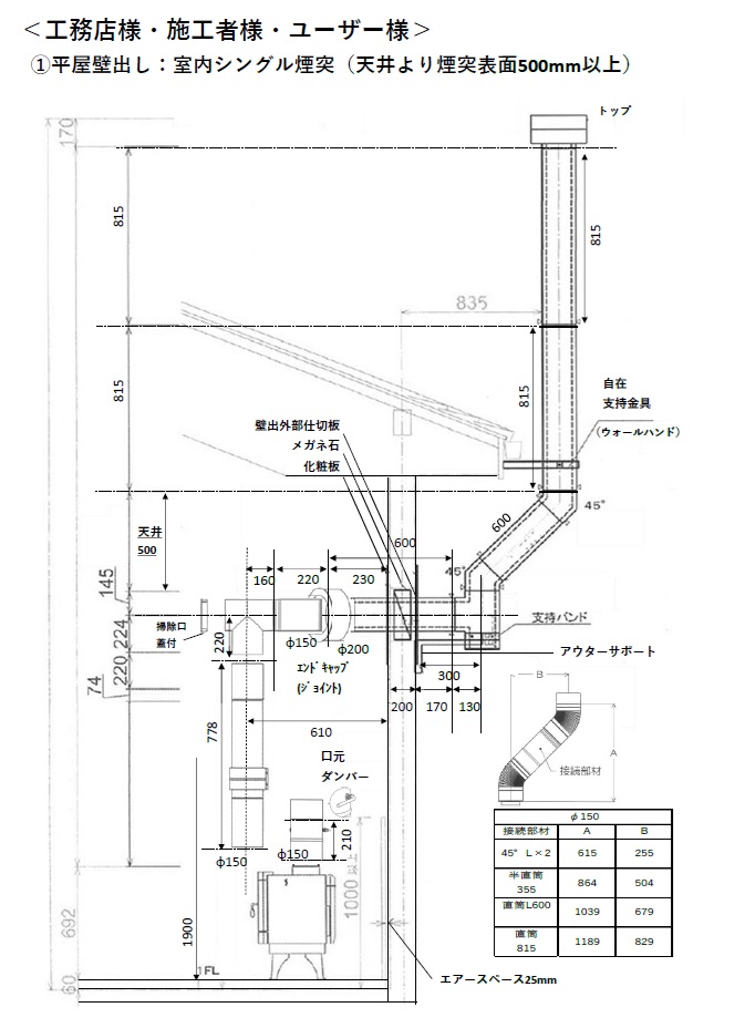
①平屋壁出し:室内シングル煙突(天井より煙突表面500mm以上)
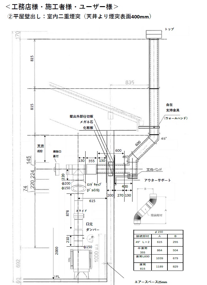
②平屋壁出し:室内二重煙突(天井より煙突表面400mm)
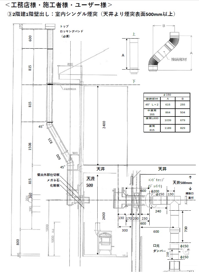
③2階建1階壁出し:室内シングル煙突(天井より煙突表面500mm以上)
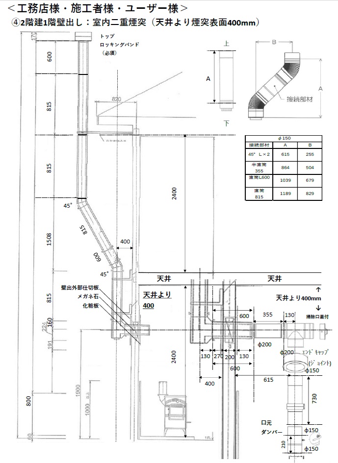
④2階建1階壁出し:室内二重煙突(天井より煙突表面400mm)
やっぱり、薪ストーブと煙突は専門店で!ご相談!!
軽井沢暖炉へ電話をどうぞ(027-362-2251、通話料無料:0800-800-8216)
楽しく、快適な薪ストーブ生活をお楽しみください。



